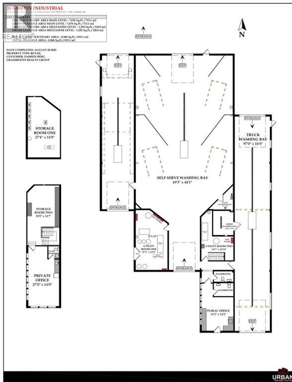
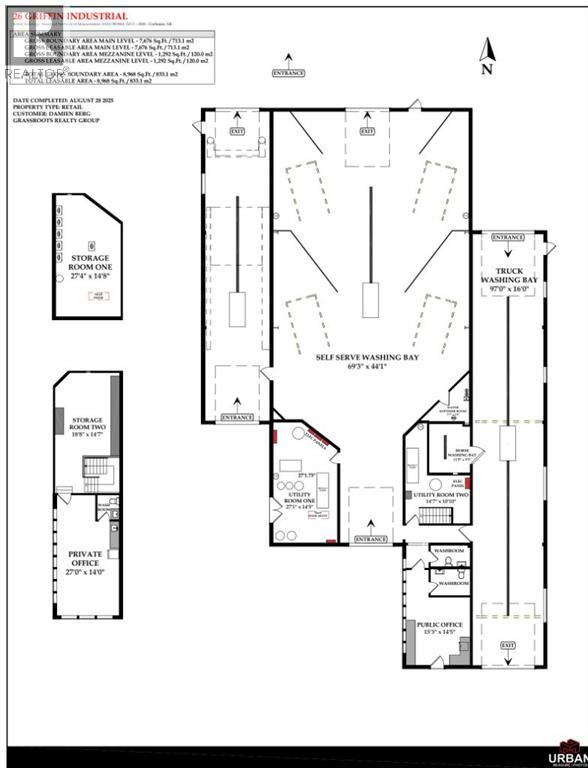
Introducing a rare opportunity to own a purpose-built, high-visibility commercial property designed to serve a wide range of vehicle types — from compact cars to large trucks. Located in the thriving industrial area of Griffin Industrial, this 8,968 sq ft facility offers a turn-key solution for operators in the car/truck wash industry or those seeking a unique income-producing asset.Main Level Highlights: 4 self-serve wash bays, Massive 96-ft Truck & RV Bay (Max Height: 13’6”), Touchless Typhoon drive-through wash bay, Dedicated room for a potential dog wash, Public office, 2 utility rooms, water softener room, and two 2-pc washroomsMezzanine Level: Private office, 2 storage rooms, Additional 2-pc washroomModern, clean, and professionally maintained, this facility is equipped with premium components, a brand new Navien Boiler System, and intuitive flow-through access for ease of customer use. The office space is bright and welcoming, while the mezzanine level provides functional work and storage areas.Additional Features: Paved access routes and drive-through lanes, Excellent signage exposure, Plenty of customer and employee parking, Easy access for trucks, trailers, and RVs.This property is ideal for an owner-operator or investor looking to expand or enter the car/truck wash industry with a one-of-a-kind facility — a rarity in today’s market.High-traffic location with quick access to major commuter and transport routes makes this an unbeatable opportunity. (id:58665)
26 Griffin Industrial PointCochrane, Alberta, T4C0A2
Listing Details
Property Details
- Full Address:
- 26 Griffin Industrial Point, Cochrane, Alberta
- Price:
- $ 3,150,000
- MLS Number:
- A2254001
- List Date:
- September 5th, 2025
- Neighbourhood:
- Industrial
- Building Size:
- 8968 sq.ft.
- Lot Size:
- 2530 square meters
- Year Built:
- 2019
- Taxes:
- $ 19,754
- Listing Tax Year:
- 2025
Interior Features
Building Features
- Building Size:
- 8968 sq.ft.
- Legal Description:
- 4
- Legal Description (Lot):
- 5
- Taxes:
- $ 19,754
Floors
- Finished Area:
- 8968 sq.ft.
- Main Floor:
- 8968 sq.ft.
Land
- Lot Size:
- 2530 square meters
- Road Type:
- Paved road
Neighbourhood Features
Ratings
Commercial Info
- Business Type:
- Automobile
About The Area
Area Description
HoodQ
Walkscore
The trademarks MLS®, Multiple Listing Service® and the associated logos are owned by The Canadian Real Estate Association (CREA) and identify the quality of services provided by real estate professionals who are members of CREA" MLS®, REALTOR®, and the associated logos are trademarks of The Canadian Real Estate Association. This website is operated by a brokerage or salesperson who is a member of The Canadian Real Estate Association. The information contained on this site is based in whole or in part on information that is provided by members of The Canadian Real Estate Association, who are responsible for its accuracy. CREA reproduces and distributes this information as a service for its members and assumes no responsibility for its accuracy The listing content on this website is protected by copyright and other laws, and is intended solely for the private, non-commercial use by individuals. Any other reproduction, distribution or use of the content, in whole or in part, is specifically forbidden. The prohibited uses include commercial use, “screen scraping”, “database scraping”, and any other activity intended to collect, store, reorganize or manipulate data on the pages produced by or displayed on this website.
Multiple Listing Service (MLS) trademark® The MLS® mark and associated logos identify professional services rendered by REALTOR® members of CREA to effect the purchase, sale and lease of real estate as part of a cooperative selling system. ©2017 The Canadian Real Estate Association. All rights reserved. The trademarks REALTOR®, REALTORS® and the REALTOR® logo are controlled by CREA and identify real estate professionals who are members of CREA.